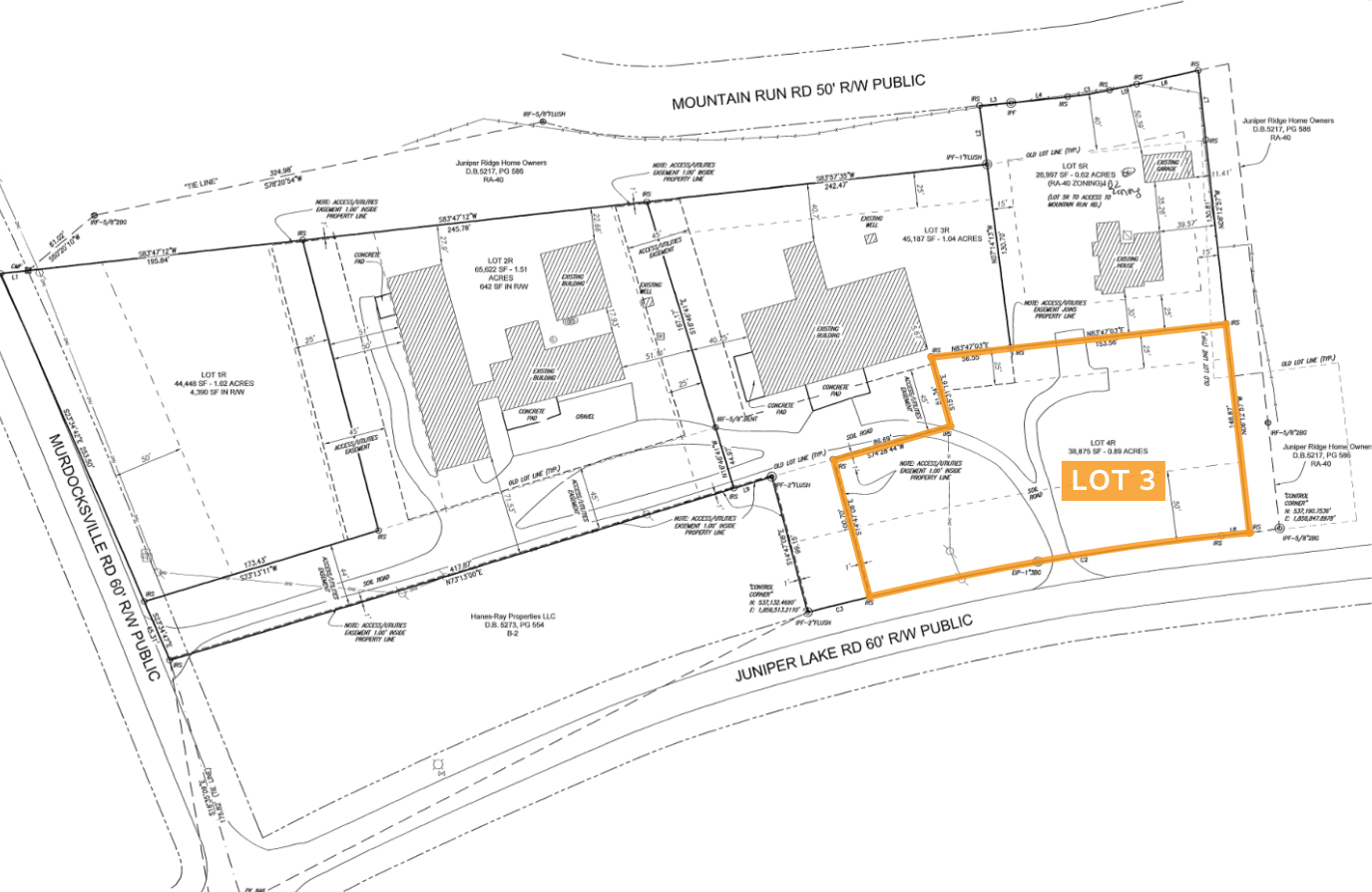
Positioned along Juniper Lake Road near the intersection with Murdocksville Road in West End, this +/- 0.89-acre commercial lot (Lot 3) is a portion of Parcel IDs 00023390 and 20130318 and offers approximately 272 feet of road frontage. The property is zoned B-2 (Highway Commercial). An adjacent lot (Lot 2) improved with a commercial building is also available for purchase and adjoins this property, while a separate third lot (Lot 1) along Murdocksville Road is available nearby, providing additional purchase options
Additional Lots


